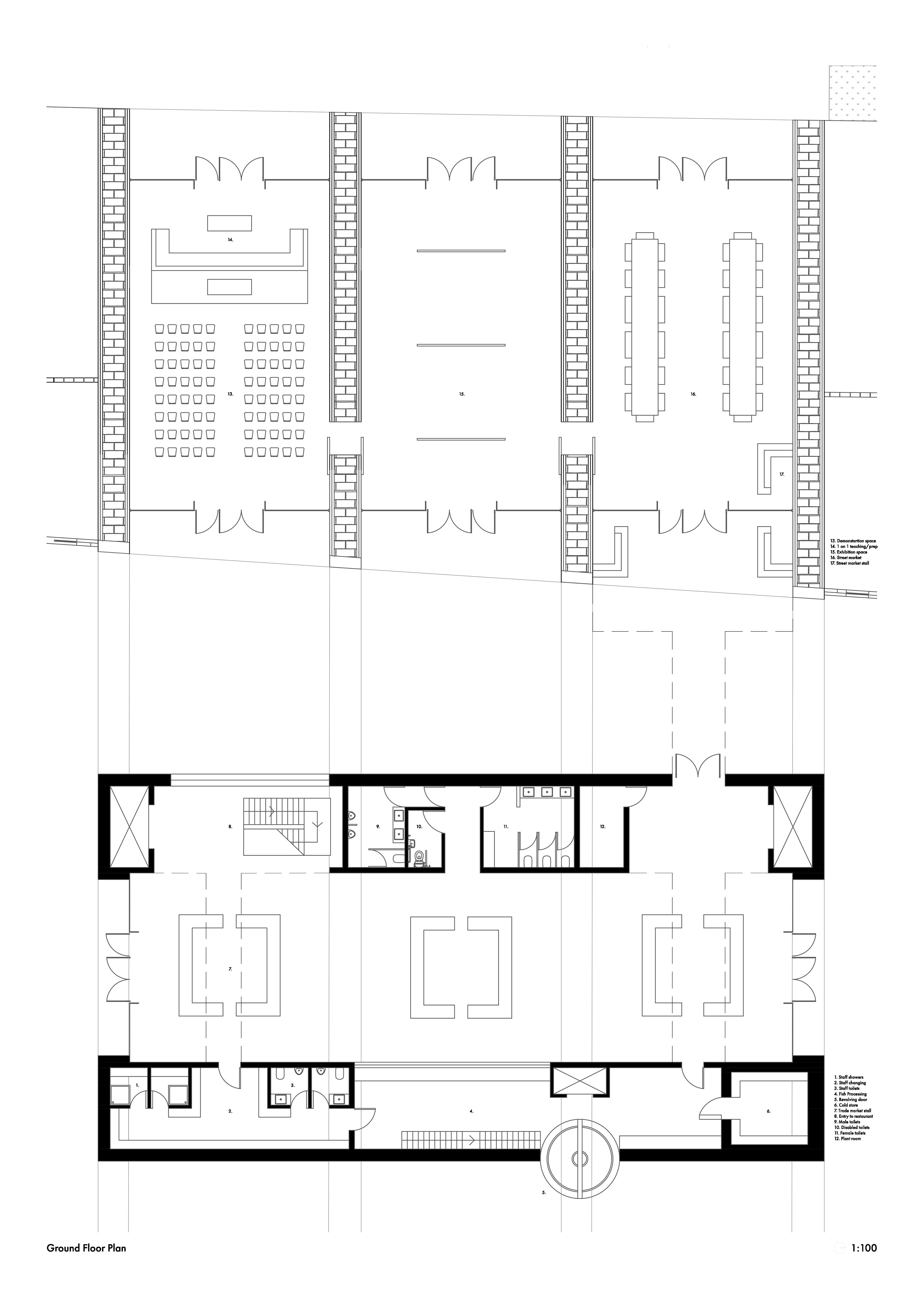
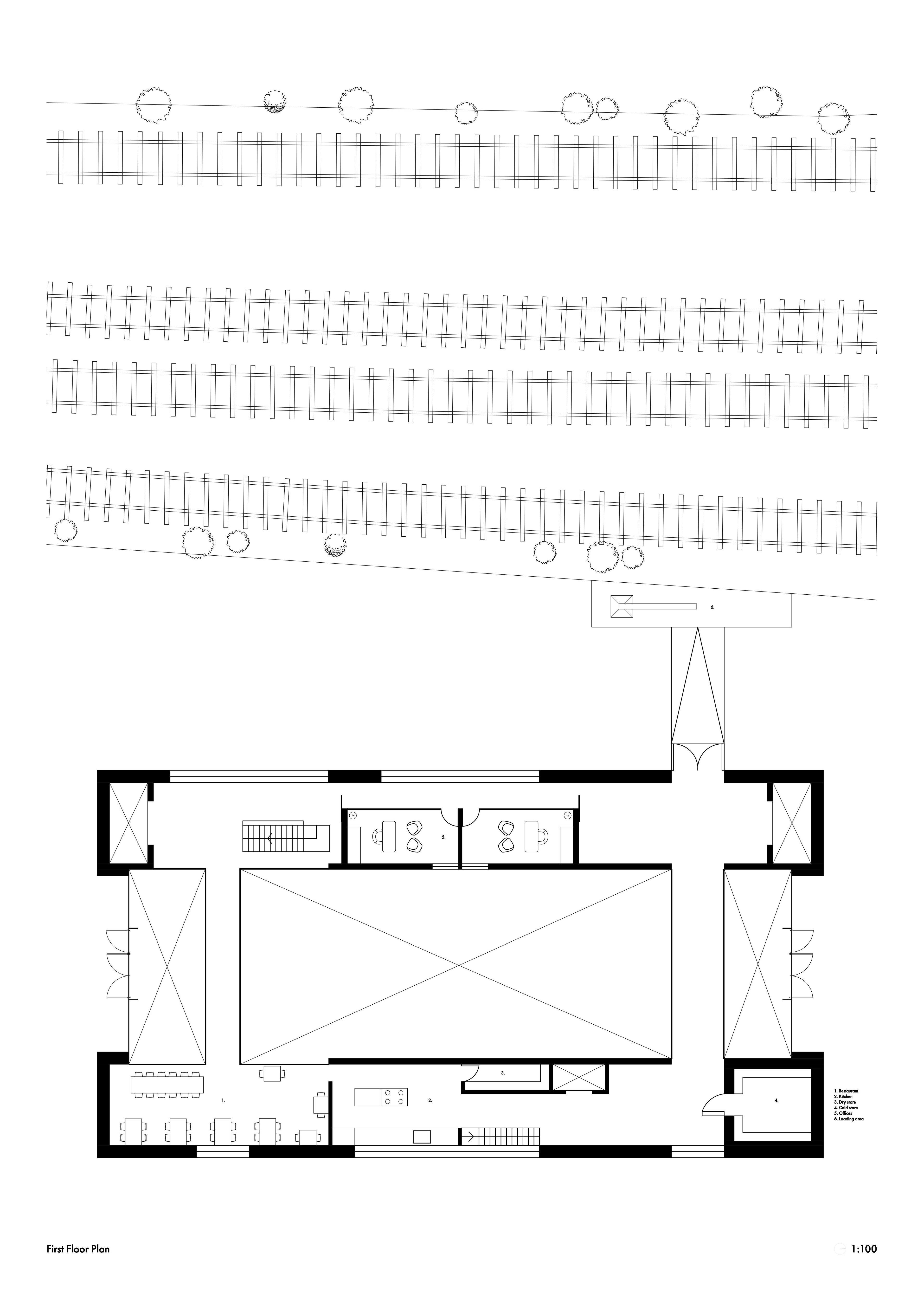
The brief was to design a new fish market for Aberdeen which would have its own river Dee and rail connection. The market was to be designed within the existing railway arches. However I felt this was a mistake, firstly the historical precedent didn’t agree, and I felt that the arches held a great beauty which should be protected. This approach was viewed unfavourably by the teaching staff , nevertheless, I continued with this view and during the end of year Crit, Brian MacKay-Lyons agreed that this was the most fitting approach to the site and local history.
 
      
      
     
      
     
      
    During the design process, I envisioned Aberdeen City Council being an active stakeholder due to the scale and prominence the project would have, and this led me to redesign the road layout significantly. The new design was to be a shared space (first popularised by Hans Monderman). This would increase traffic flow, minimise stopping which would have the benefit of fewer emissions to the market creating a more pleasant space. As well as improving pedestrian access and experience.
 
      
     
      
     
      
     
      
     
      
     
      
      
     
      
     
      
     
      
     
      
     
      
     
     Software | Autocad, SketchUp, Photoshop
Model | MDF + Epoxy
 
      
     
      
     
      
     
                                       
                                       
                                       
                                       
                                       
                                       
                                       
                                      